Vous êtes déjà locataire ou copropriétaire, connectez-vous À votre espace locataire lien externe À votre espace copropriétaire lien externe
Pas encore de compte ? Facilitez votre recherche de logement : gérez vos favoris, vos alertes et vos préférences d’informations de la newsletter. en vous Inscrivant ici
Nos partenaires
icon-picture
Appartement T5 à Compiègne
appartment-little

Louer

Appartement T5 à Compiègne

icon-price-blue

/mois

Toutes charges comprises

Dont 266.09 € de provisions de charges}}

appartment-blue

Appartement

rooms-blue

5 pièces
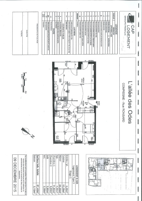
T5 - 97m²*

time-blue

Disponible
de suite

Présentation du logement

x3
(5 pièces)
2
2ème étage
Avec ascenseur
icon-bath Avec baignoire

A louer type 5 à COMPIEGNE.

Entrée avec placard, cuisine, séjour, salle à manger, couloir avec un placard, salle d'eau avec douche + WC, 3 chambres dont une avec un placard, SDB, WC et une cave.

Contactez nous vite par mail.

Montant des charges : 266.09 €

VISITE SUR RENDEZ-VOUS : 0323507070

Chauffage : collectif

Cave : oui

Gardien : oui

Exclusivité : oui


Vos avantages Clésence

Fond dégradé 1 Fond dégradé 2
no_charge

Pas de frais de dossier ni d’agence

Fond dégradé 1 Fond dégradé 2
calendar

Paiement de votre loyer à terme échu

Pas besoin d’avancer des frais en début de mois

Les informations sur les risques auxquels ce bien est exposé sont disponibles sur le site Géorisques : www.georisques.gouv.fr

Diagnostic de performance énergétique

Consommation énergétique

< 50

a

51 à 90

b

91 à 150

c

151 à 230

d

231 à 330

e

331 à 450

f

> 450

g

c

141

kwhep/m²/an

icon-chevron-right-red-16

Emission de gaz à effet de serre

< 5

a

6 à 10

b

11 à 20

c

21 à 35

d

36 à 55

e

56 à 80

f

> 80

g

d

30

kwhep/m²/an

icon-chevron-right-red-16

* Surface donnée à titre indicatif

Nos autres logements à proximité